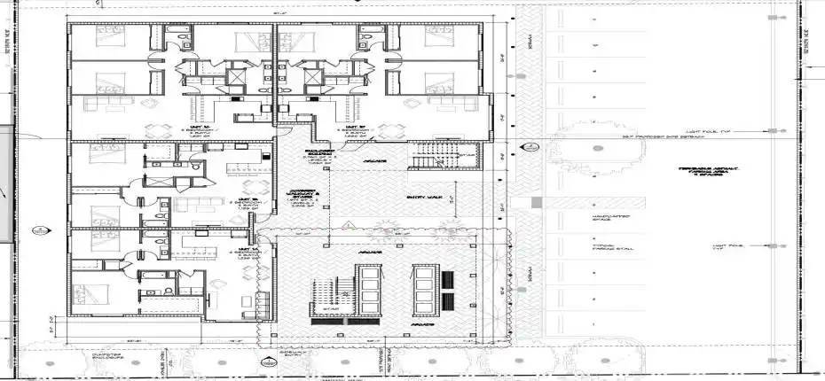
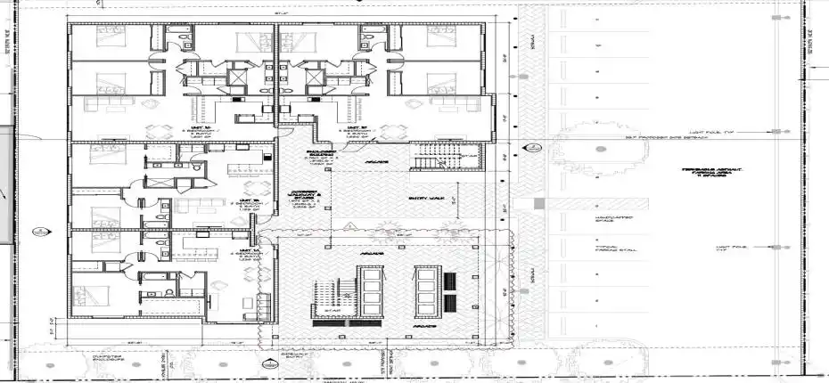
Turnkey Multifamily Development | Site Plan Approved | Permit Package Ready 109, 117 & 125 W 14th St, Riviera Beach, FL 33404. A rare, shovel-ready multifamily opportunity in the thriving redevelopment zone of Riviera Beach. This three-parcel assemblage is fully entitled and comes with a permit Submittal ready construction package, ideal for investors or developers seeking a ready to go development. The project consists of a two-story, 8-unit building featuring modern layouts and a strategic mix of unit types perfectly aligned with rental market demand. Total Units: 8 – (4) Three-Bedroom / Two-Bath Units (~$3,260 Market | $2,860 HCV) – (4) Two-Bedroom / Two-Bath Units (~$2,420 Market | $2,190 HCV)- Parking: 11 Off-Street Spaces. Total Rentable SF (Estimated): ~9,600 SF.
kris@myperfecthouse.com
