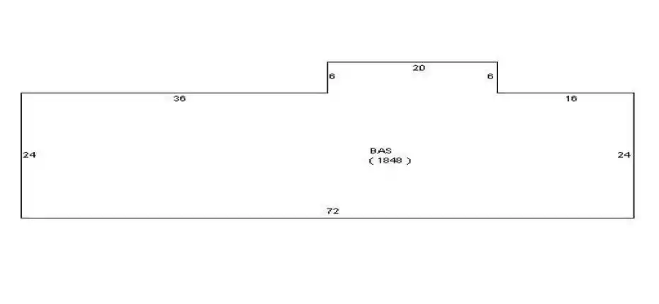
LOCATION! 56.6 total acres, ideal for any business that conducts light or heavy industrial use. Site approved for 360,000 sq ft warehouses and a recycling facility. Land is considered Brownfield and has many tax benefits. Enviro Phase 1 and 2 completed as well as other assessments paid. A 1,848 sqft CBS structure on site, .5 mi from commercial TCI airport, direct access to I-95, close to the inlet/port, and turnpike. 36 acres- LI, 20 acres – HI, This is a PRIME location in South Florida- Fort Pierce is growing FAST!
kris@myperfecthouse.com
