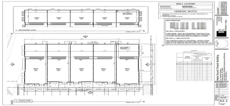
Unlock one of the most coveted opportunities in Martin County — a shovel-ready, fully permitted commercial development site located on the high-visibility US-1 corridor in Hobe Sound, Florida. This 0.92-acre parcel is offered with fully engineered and county-approved plans for a 9,650 square foot retail/flex building plus 3,122 square feet of mezzanine space, allowing for immediate construction and streamlined delivery.
kris@myperfecthouse.com
