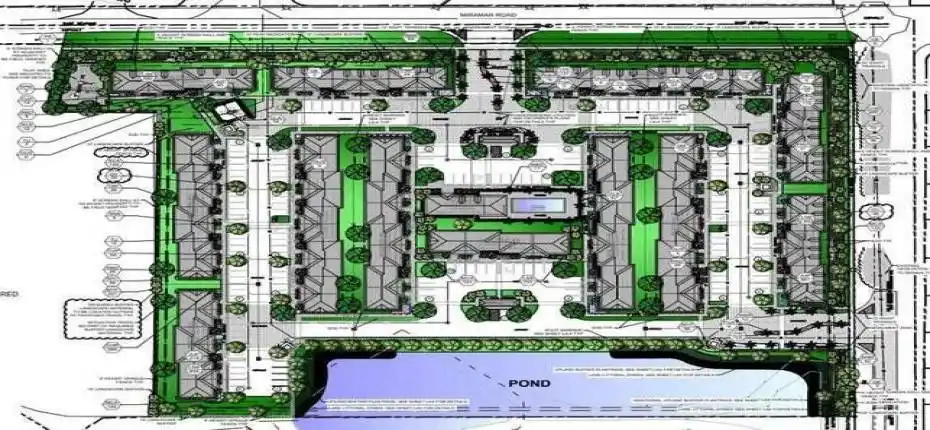
Introducing an exceptional opportunity for multifamily residential development. This prime property of 9.44 acres boasts an unbeatable location just minutes away from beach access and offers unparalleled convenience being only 5 miles east of I-95 and Florida’s Turnpike. With its coveted zoning of RM-9, this parcel presents a range of possibilities for developers seeking to create a thriving community. Site plans have been approved and ready to submit for permitting. St. Lucie county has granted development order extension for this project out until Oct 3rd, 2028. The potential for this property is truly impressive, with the current plans allowing for the construction of 84 apartments or townhouses. Water and sewer services are readily available through the city.
kris@myperfecthouse.com
