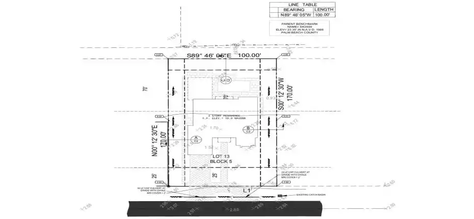
Premium Ocean Ridge Lot – Nearly Permit-Ready! Build a luxury estate on this 0.39-acre lot just a short walk to the beach, only 400 ft from the Intracoastal Waterway. Extensive permitting work is nearing completion. A full FDEP application has been submitted, including wetland delineation, fill estimates, erosion control measures, structural stormwater design, and mitigation credits from Everglades Mitigation Bank. Site plans (Sheets C3 & C4) include retaining walls and post-development elevations.This rare lot offers the potential water views of the passing boats on the Intracoastal. Situated in one of South Florida’s most exclusive beachside enclaves. Investors benefit from reduced timelines and risk. High-demand location with limited supply. BRING ALL OFFERS!
kris@myperfecthouse.com
