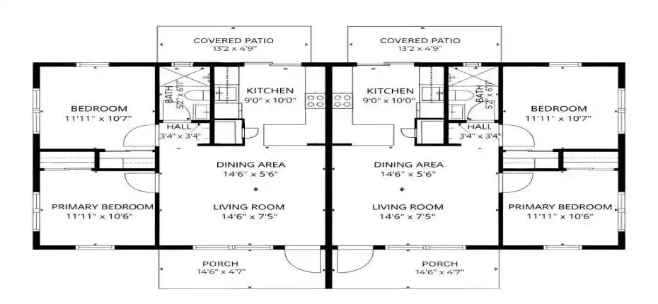
A truly rare opportunity in the heart of Downtown Delray Beach. This one-of-a-kind duplex was fully rebuilt and renovated in 2016 and showcases a distinctive Art Deco vibe in a prime, walkable location just two blocks north of Atlantic Avenue. Step outside and enjoy effortless access to Delray’s best dining, nightlife, boutiques, and entertainment, no car required.Every major component has been updated, including cabinetry, countertops, appliances, flooring, windows, and roof, making this a completely turnkey, low-maintenance investment. Each unit is a 2-bedroom, 1-bath residence with its own washer and dryer, private fenced yard, and thoughtfully designed interiors.This is a proven income-producing property, currently operating as an active Airbnb and VRBO, and professionally
kris@myperfecthouse.com
